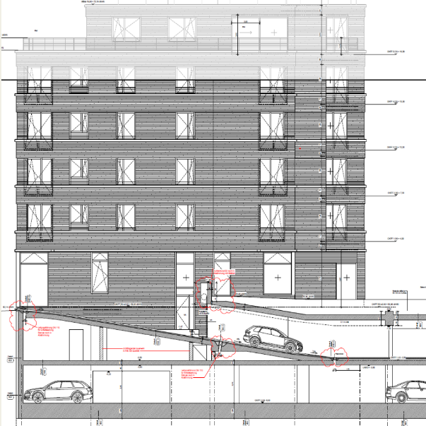
Projekte
Anschaulich und konkret:
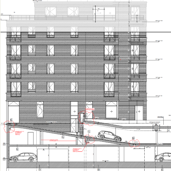
Die Gründungsbauteile der nachfolgenden Projektreferenzen wurden von den Mitarbeitern dieses Ingenieurbüros in ihrer vorherigen bzw. in ihrer jetzigen Tätigkeit bearbeitet.
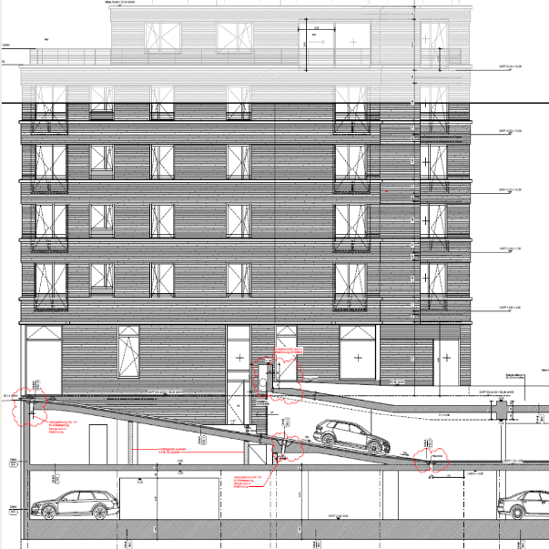
Anschaulich und konkret:
Die Gründungsbauteile der nachfolgenden Projektreferenzen wurden von den Mitarbeitern dieses Ingenieurbüros in ihrer vorherigen bzw. in ihrer jetzigen Tätigkeit bearbeitet.