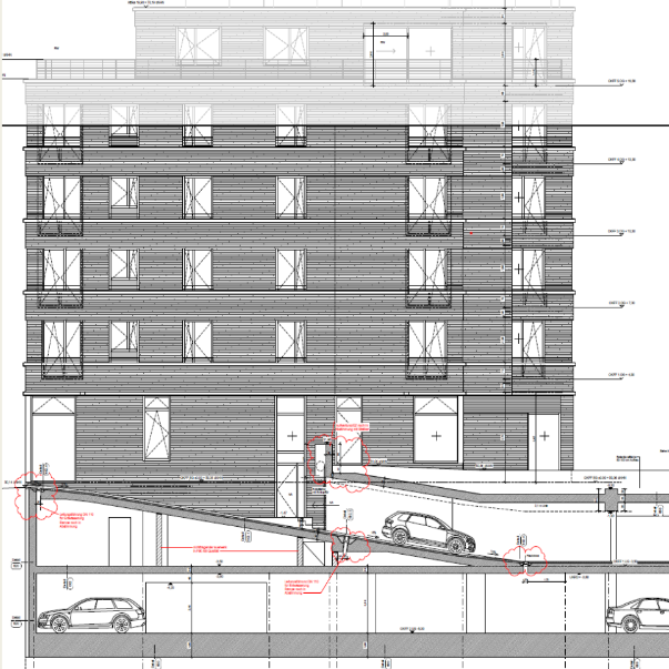
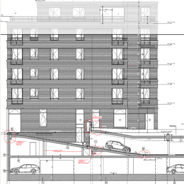
Projekte
Anschaulich und konkret:
Die Gründungsbauteile der nachfolgenden Projektreferenzen wurden von den Mitarbeitern dieses Ingenieurbüros in ihrer vorherigen bzw. in ihrer jetzigen Tätigkeit bearbeitet.
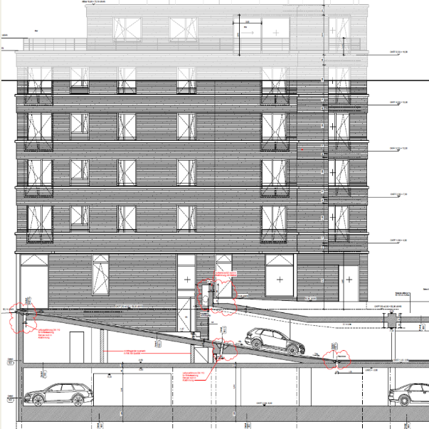
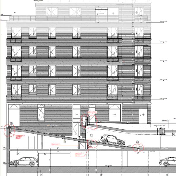
Anschaulich und konkret:
Die Gründungsbauteile der nachfolgenden Projektreferenzen wurden von den Mitarbeitern dieses Ingenieurbüros in ihrer vorherigen bzw. in ihrer jetzigen Tätigkeit bearbeitet.