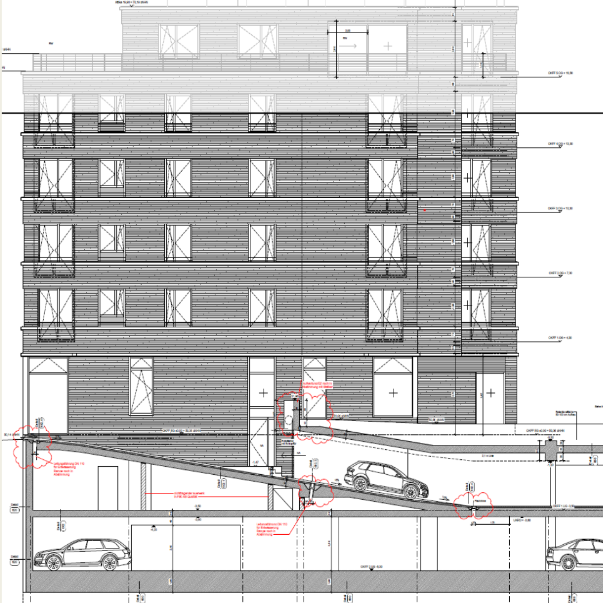
Projects
Transparent and concretely:
The foundation slabs/raft foundations of the following project references were designed/redesigned by the employees of this engineering office in their previous or current job-activity.
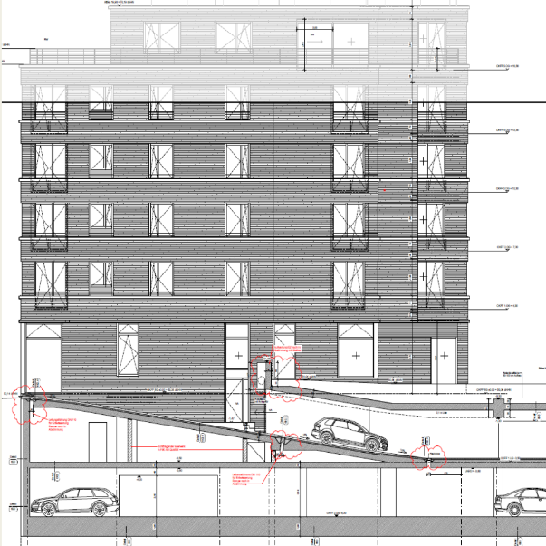
Transparent and concretely:
The foundation slabs/raft foundations of the following project references were designed/redesigned by the employees of this engineering office in their previous or current job-activity.